Портфолио

2025 | Вариант фасадов. Я такую работу называю «раскраской»: придумать одежду для уже разработанного кем-то основного объёмно-планировочного решения

Вариант отделки фасадов многоквартирного дома


2025 | Эскизный проект "Гараж | виноградник"

Эскиз "Гараж | виноградник"


2025 | Протокол "Линейная функция"

Загородный дом. Протокол "Линейная функция"


Загородный дом. Протокол "Линейная функция"


2025 | Дом с банным блоком для летнего отдыха 

Дом с банным блоком для летнего отдыха

2025 Деревенский дом 96 кв. м. с чердаком

Деревенский дом 96 кв. м. с чердаком


2025 | Эскиз перепланировки квартиры с устройством антресоли

Эскиз перепланировки квартиры с устройством антресоли


2024 Эскиз "Стрелецкая дача"

Эскиз "Стрелецкая дача"


2024 Эскиз дома М-219

Эскиз дома М-219


Планировка дома М-219

2024 | Эскиз теннисного центра

Эскиз теннисного центра


2024 | Беседка в комплексе загородных строений

Беседка в комплексе загородных строений


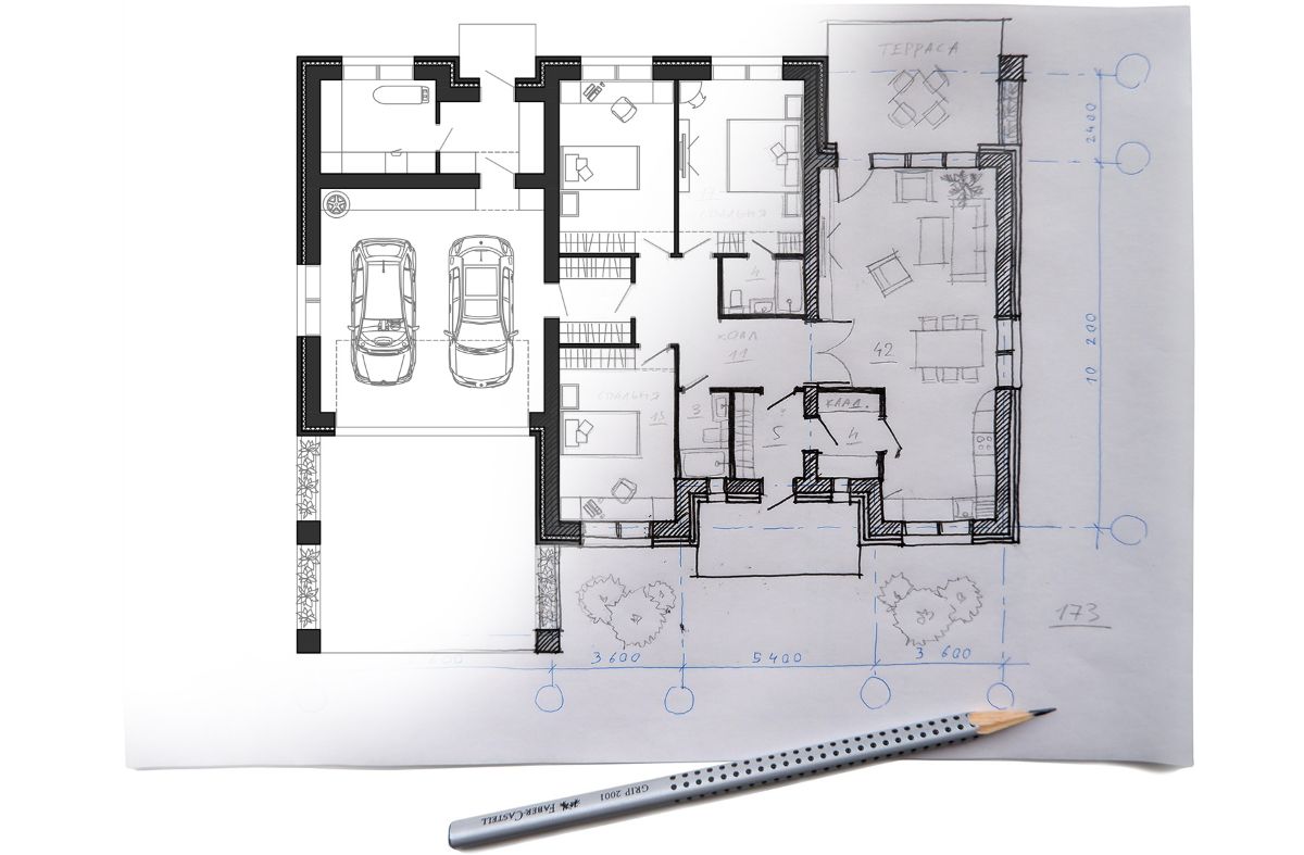
2024 | Схема планировки дома М-173

Схема планировки дома М-173


2024 | Малая архитектурная форма: дровяник для бани | навес для байка

Дровяник для бани | навес для байка


2023 | Эскиз реконструкции недостоенного дома в с. Мичурино

Эскиз реконструкции недостроенного дома в Мичурино


2023 | Эскиз дома М-179 Эскиз дома М-179

Эскиз дома М-179


2023 | Эскиз одноэтажного дома М-297 

Эскиз одноэтажного дома М-297


2023 | Эскиз дома 111 кв. м. с гаражом в Переваловском МО

Эскиз дома 111 кв. м. с гаражом в Переваловском МО


2023 | Эскиз деревенского дома М-155

Эскиз деревенского дома М-155


2022 | Эскиз паркинга на 100 автомобилей

Эскиз паркинга на 100 автомобилей

Эскиз паркинга на 100 автомобилей

2022 | Проект индивидуального жилого дома М-180

Дом М-180


Планировка дома М-180


2021 | Визуализация школы в Мегионе для "Нижневартовского Промстройпроекта"

Визуализация школы в Мегионе


2021 | Реконструкция сарая (гаража для квадроцикла)

Сарай: реконструкция


2020 | Гостевой домик из вертикально вкопанных брёвен М-30


Гостевой домик из вертикально вкопанных брёвен


2020 | Коттедж в "Раздолье", он же "Дом с тюбетейкой"

Дом в "Раздолье"


2019 | Переход из торговой галереи в кинотеатр

Переход из торговой галереи в кинотеатр


2018 | Детский бассейн

Детский бассейн


2018 | Проект дома-студии М-61

Дом-студия


2017 | Проект индивидуального жилого дома М-99Дом М-99


2017 | Проект беседки неподалёку от жилого дома М-99

Проект беседки


2017 | Проект дома М-40

Дом М-40


2017 | Проект дома М-90

Дом М-90



2017 | Дома М-40, М-60, М-70, М-90, М-100, М-120 и варианты их блокировки

Дома М-40, М-60, М-70, М-90, М-100, М-120 и варианты их блокировки


2016 | Офисно-складской комплекс

Офисно-складской комплекс


2016 | Эскиз терминала аэропорта

Эскиз терминала аэропорта


2016 | Проект индивидуального жилого дома М-230

Проект индивидуального жилого дома М-230


2015 | Эскиз торгового центра "Континент" в Заводоуковске

Эскиз торгового центра "Континент"


2015 | Проект реконструкции дачного дома М-145

Проект реконструкции дачного дома


2015 | Дом М-385

Дом М-385


2014 | Эскиз интерьера офисного центра Эскиз интерьера офисного центра


2014 | Банька 10 кв. м.

Эскиз баньки 10 кв. м.


2014 | Проект дома М-190 в Сургуте

Проект дома М-190


2013 | Концепция домов на склоне

Концепция домов на склоне


2013 | Эскиз магазина строительных материалов

Эскиз магазина строительных материалов


2013 | Входная группа

Входная группа


2013 | Проект жилого дома М-410

Проект жилого дома 410 кв. м.


2012 | Эскиз легкоатлетического манежа

Эскиз легкоатлетического манежа


Интерьер легкоатлетического манежа


2012 | Эскиз дома М-189

Эскиз дома М-189


План дома М-189


Интерьер веранды дома М-189


2012 | Проект комплекса в Московском посёлке Тюменского района

Проект комплекса в Московском посёлке Тюменского района


2012 | Дом-баня в Сургуте М-78

Дом-баня в Сургуте


2011 | Эскиз входной группы в подвальное помещение

Эскиз входной группы в подвальное помещение

Удалить товар

Вы точно хотите удалить выбранный товар? Отменить данное действие будет невозможно.