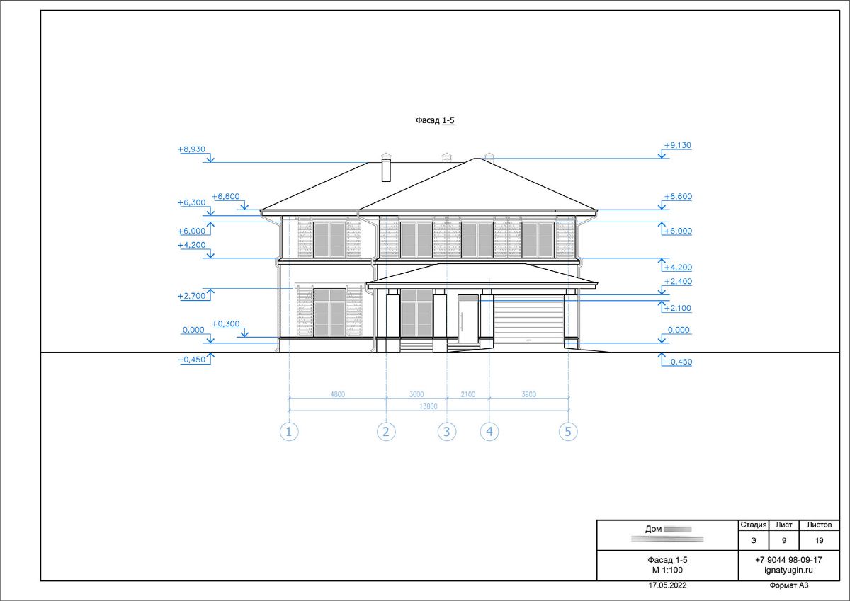
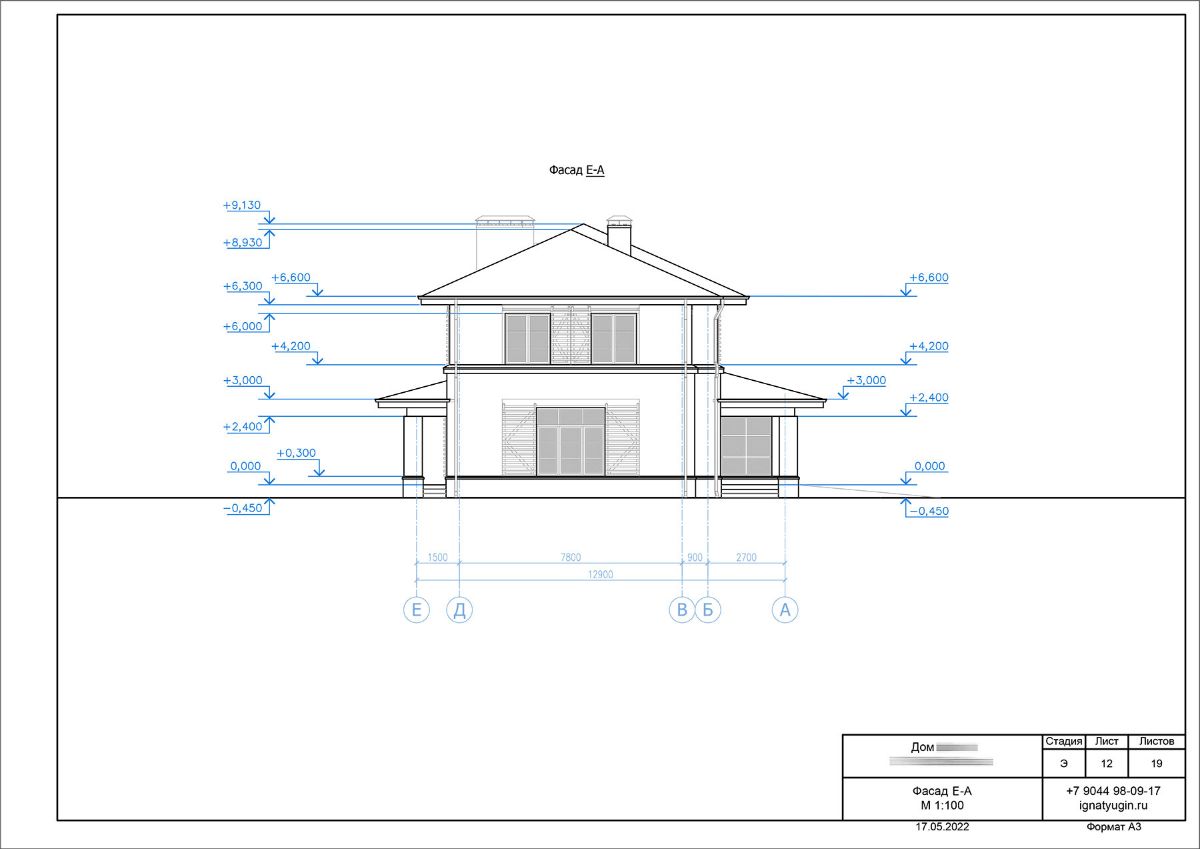
Чертежи фасадов с высотными отметками

Это ортогональные проекции дома со всех сторон в линиях. Как правило, за ноль берётся отметка пола первого этажа, затем от неё отсчитываются высоты основных элементов фасада.


Примеры:

Пример чертежа главного фасада жилого дома


Пример чертежа дворового фасада жилого дома


Пример чертежа бокового фасада жилого дома


Пример чертежа бокового фасада жилого дома