Эскиз "Гараж | виноградник"

Эскиз "Гараж | виноградник"

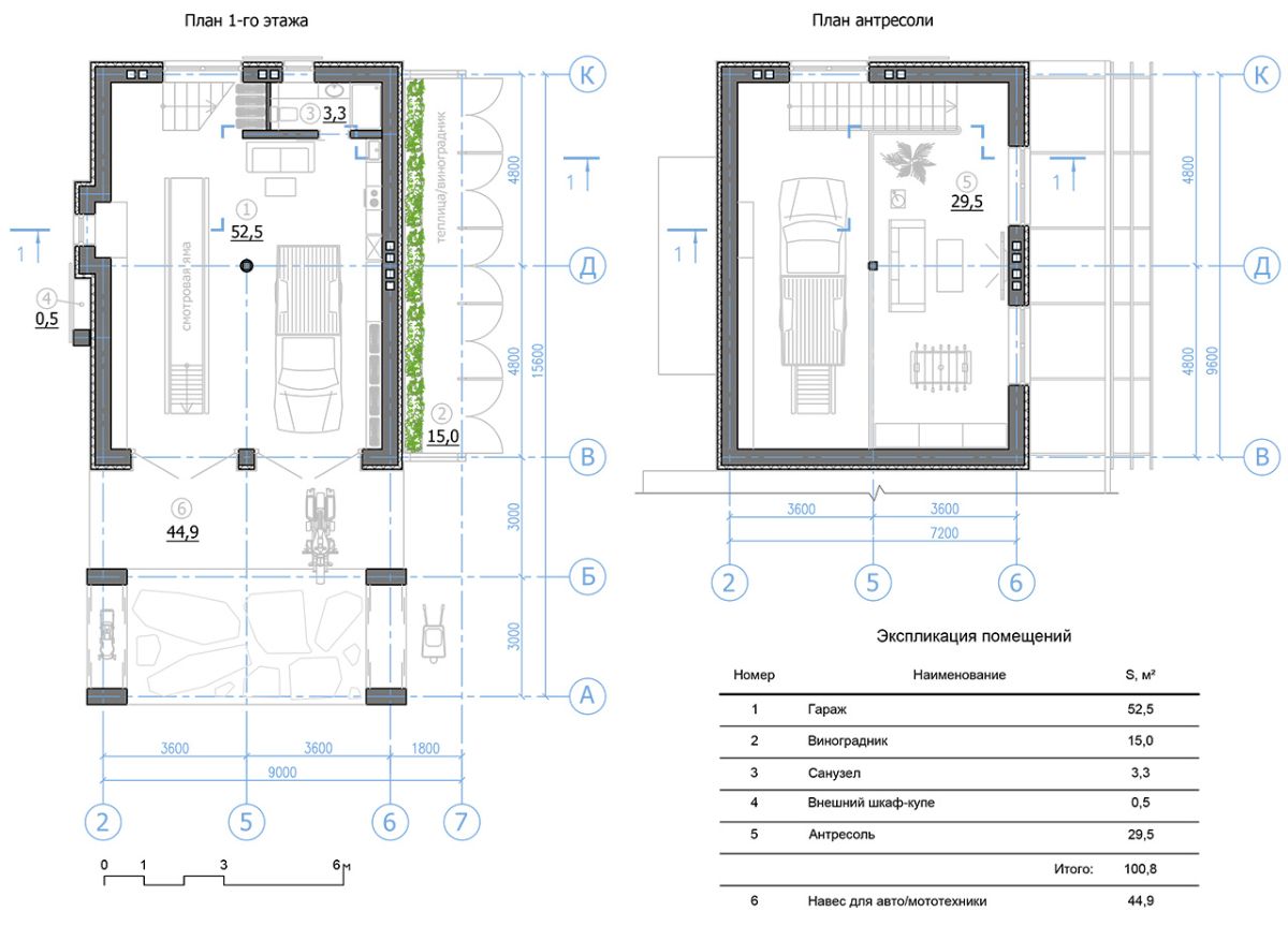
Схема гаража с большим навесом перед воротами и пристроенной теплицей/виноградником. Антресоль для отдыха и смотровая яма в наличии. Сделан в дополнение для запроектированного ранее дома.


Планировка "Гараж | виноградник"


Эскиз "Гараж | виноградник"


Эскиз "Гараж | виноградник"


Эскиз "Гараж | виноградник"

Удалить товар

Вы точно хотите удалить выбранный товар? Отменить данное действие будет невозможно.